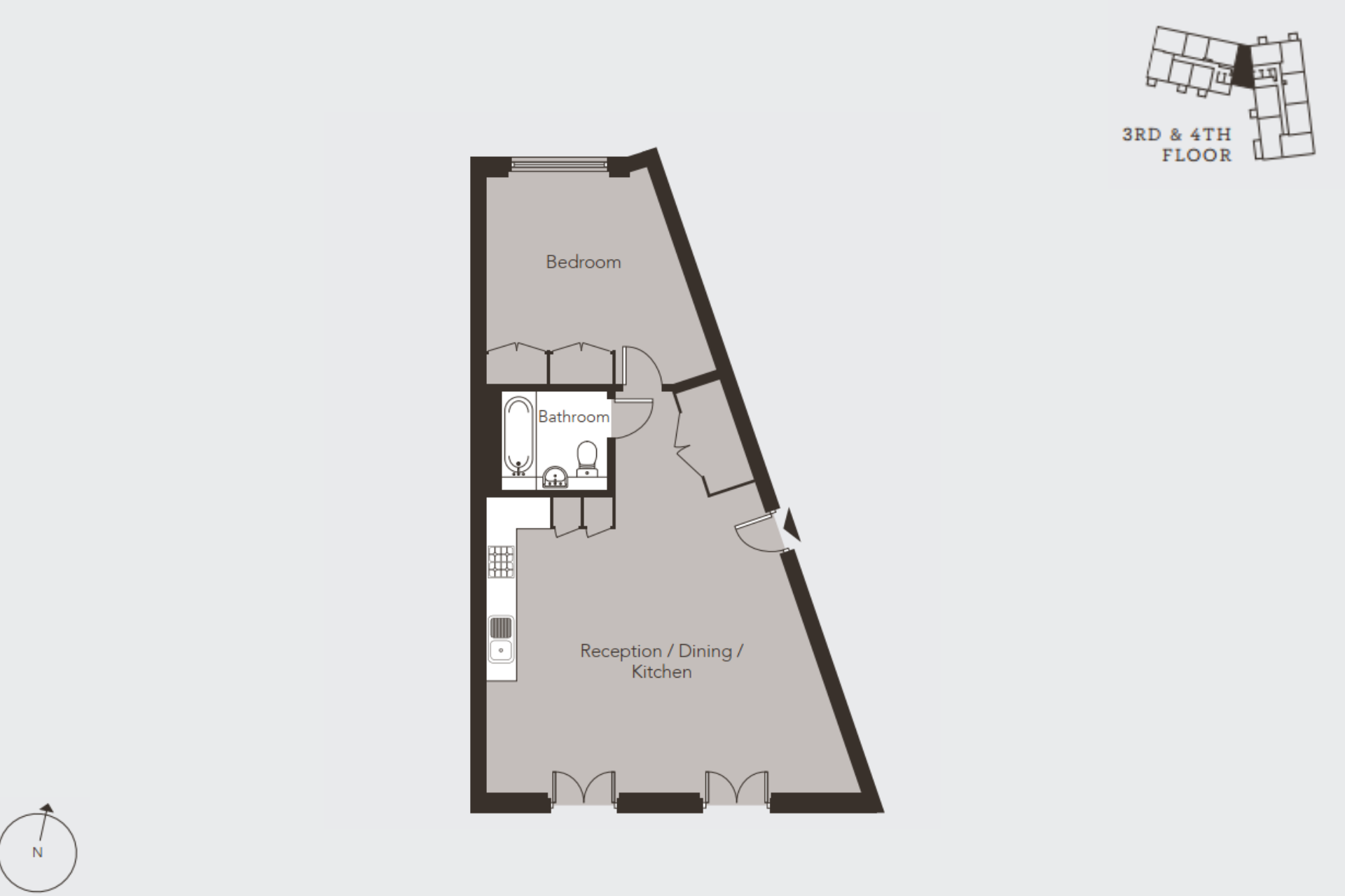
Description
Plot 39 is a cleverly designed, dual-aspect one-bedroom apartment offering approximately 678 sq ft (63 m²) of contemporary living in the heart of Vauxhall. Upon entry, you’ll notice the large open-plan reception, dining and kitchen — maximising natural light through large windows and creating an inviting space for entertaining or relaxed living. The kitchen is appointed with sleek modern finishes, clean lines and integrated appliances, and there is an additional utility / storage cupboard also.
The double bedroom is a calm retreat, featuring built-in storage and quiet orientation. Complementing the layout is a beautifully appointed bathroom featuring a bath with rainwater shower, large format tiles and dimmer lighting.
Key features
- Ready to move into now
- Open plan layout with large living area
- Unique living room layout
- Juliette balconies on the living room and bedroom
- Siemens appliances
- Access to suite of hotel-style amenities
Floor plans

Area
sq ft | m² | |
---|---|---|
ft | m | |
RECEPTION / DINING / KITCHEN | 25'6" × 23'8" | 7.78 × 7.21 |
BEDROOM | 14'5" × 13'5" | 4.39 × 4.09 |
SQ FT | SQ M | |
---|---|---|
FT | MM | |
RECEPTION / DINING / KITCHEN | 25'6" × 23'8" | 7780 × 7210 |
BEDROOM | 14'5" × 13'5" | 4390 × 4090 |
* The prices displayed on our website are not final prices and only indicate how much we believe a property may cost at the time. We have the right to change these prices at any time. The prices on our website do not necessarily mean that similar properties within the same development have sold at the same price. Read full T&C


Enquires
To find out more, arrange a viewing or join our mailing list, simply fill out this form and we will be in touch.
Alternatively, please call:
020 3993 7880
Council tax
Homes at Keybridge are Council Tax Band E or F - speak to our sales team for more information.
Lease Length
The lease is a 999 year lease which currently has 994 years left on the lease.
New Homes Warranty
Homes at Keybridge are sold with the balance of the new home warranty - ask our sales team for specific details.

Like what you see?
Contact us today to find out more about this home, other homes we have available or more coming soon. Our Sales Suite is open from Tuesday to Saturday from 10am. Get in touch today to book a viewing.